Pershkrimi
Shitet, vile elitare 3-kate, ne nje nga rezidencat me te veçanta te zones se Farkes. Vila ndodhet ne kompleksin rezidencal “West Home” në Farkë, 2 minuta nga TEG, 10 minuta nga qendra e Tiranes dhe 5 minuta nga liqeni i Farkes, me hyrje ne rrugen e Agallareve. Kjo rezidenc sjell një stil te ri jetese, konceptuar mes jetesës private-familjare dhe asaj socail-komunitare. Vila eshte projektuar me hapesira tê bollshme ne çdo mjedis, diazin modern, planimetri te rregullt dhe ndriçim natyral, duke u fokusuar forte tek cilesia e ndertimit. Rezidenca do kete hapsira rekreative me fusha sportive dhe kende lojrash per femije. Kjo vile pozicionohet ne pike panoramike dhe ofron pamje te lire mbi godinat e tjera, me orientim Jug-Perendim, duke mos patur ndertesa te tjera perball.
Cilesime te Viles:
~Mundesi Kreditimi pa Kolateral, 70 % Finacim
~Vila eshte Aktualisht ne Faze Mbyllje Rifiniturash
~E Banushme Gusht 2026
~ 2 Poste Parkimi te Perfshira ne Çmim
~ Siperfaqe Ndertimi Bruto 281 m2
~ Siperfaqe Oborri Neto 151 m2
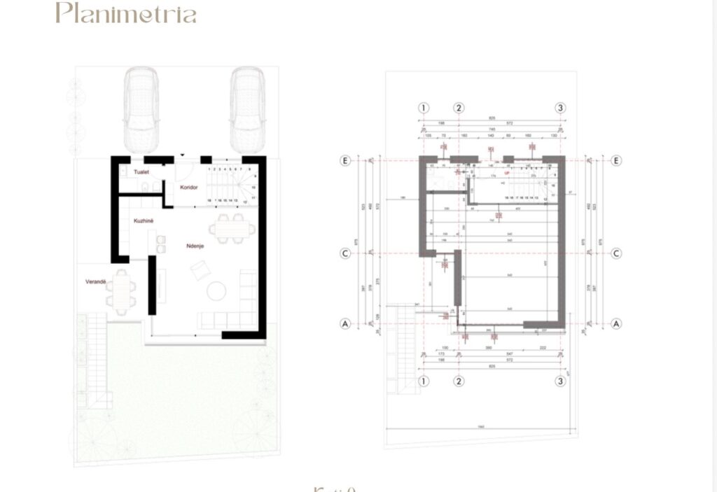
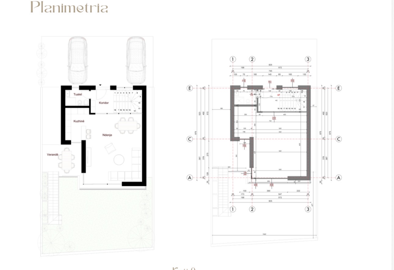
Organizohet:
Kati 1
• Sallon Ndenjie
• Guzhin
• Tualet
• Verand e Gjer
• Shkall Lidhese me Katin 2
• Orientim Jug - Perendim
Kati 2
• 3 Dhoma Gjumi
• 2 Tualete
• Koridor Shperndares
• Ballkon Panoramik
• Verand e Madhe
Kati -1
• Dhome Teknike
• Hapsir Rekreative
• Tualet
• Shkall Lidhese me Katin 1
• Oborr me Gjelberim dhe Ambjent Ndenjie Natyror
Per me shum informacion dhe nje vizit ne prona na kontaktoni📲0692731191
Detaje
-
Siperfaqe281 m2
-
Dhoma5
-
Tualete4
-
Ballkone4
Kategoria
Adresa
-
Rruga Agallarëve, 1045 Tirana, Albania
Add a review